Описание
Прицеп-цистерна для перевозки и раздачи дизельного топлива АТЗ-0,95 — Мобильная автозаправочная станция
Прицеп-цистерна АТЗ-0,95 представляет собой полностью укомплектованный мобильный топливозаправщик и резервуар для кратковременного хранения светлых нефтепродуктов. Это автономное решение для обеспечения топливом техники и оборудования в полевых условиях, на строительных площадках, в сельском хозяйстве и на промышленных объектах.
Ключевые преимущества и особенности:
1. Полная автономность и мобильность: конструкция на собственном прицепном шасси позволяет легко и быстро транспортировать цистерну любым подходящим автомобилем. Все необходимое оборудование для заправки уже интегрировано и готово к работе сразу после поставки.
2. Безопасность и соответствие требованиям: цистерна изготовлена из прочной конструкционной стали 09Г2С, толщиной 3 мм
3. Комплексная система безопасности включает в себя:
- Дыхательный клапан (СМДК-50А АМ) для стабилизации давления.
- Устройство заземления (катушка и цепь) для предотвращения возгорания от статического электричества.
- Полный комплект противопожарного инвентаря (огнетушитель ОП-5, ящик для песка и ящик для кошмы)
- Яркая маркировка: контурная светоотражающая полоса, знаки класса опасности и опасности для окружающей среды, а также надпись «ОГНЕОПАСНО» для предупреждения персонала.
4. Эффективность заправки
Оснащена топливным насосом Petrol Starlet 80 Basic (12V). Это полноценная заправочная станция, обеспечивающая быструю и удобную раздачу дизельного топлива.
Электрический насос питается от собственной автономной АКБ, для зарядки которой предусмотрено зарядное устройство от сети 220В.
5. Продуманная комплектация
В базовую поставку входит все необходимое для начала работы: от противооткатных упоров и опорных стоек для стабилизации до ящика для аккумулятора и зарядного устройства.
Технические характеристики:
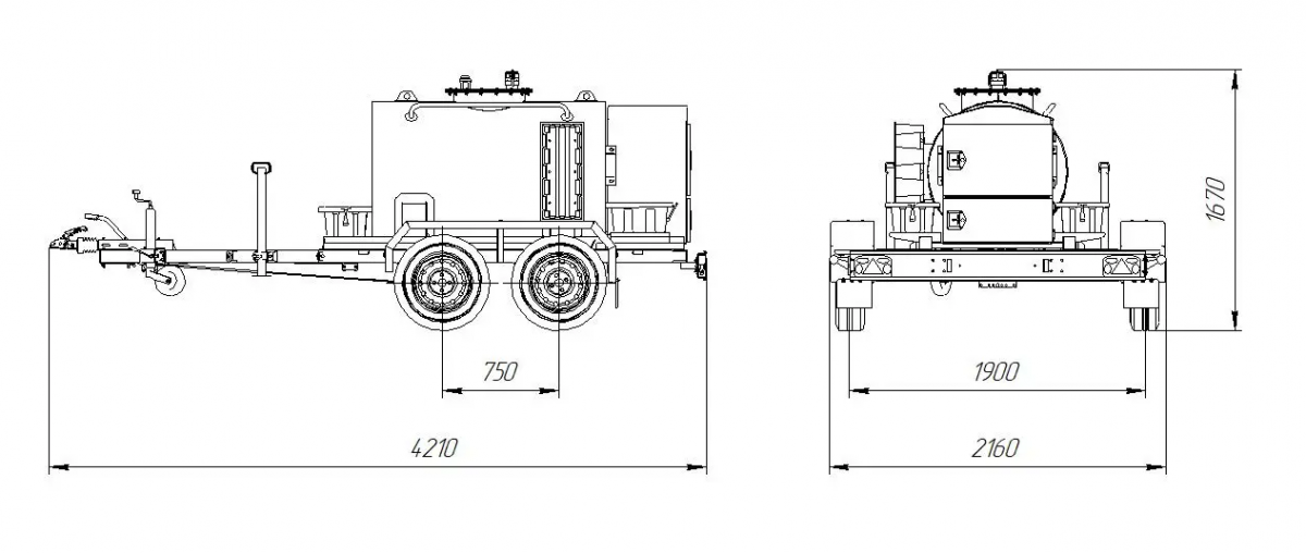
Шасси прицепа:
- Полная масса: 2000 кг
- Количество осей: 2
- Габаритные размеры (ДхШхВ): 4300 × 2150 × 1720 мм
- Тип сцепного устройства: шар D-50 мм
- Подвеска: Независимая торсионная (обеспечивает плавность хода и устойчивость)
- Шины: 195/65R14
- Тормозная система: Инерционного типа с барабанными тормозами.
Цистерна (АТЗ-0,95):
- Полезный объем: 0,95 м³
- Материал: Сталь 09Г2С, толщина стенки 3 мм.
- Конструкция: Односекционная, круглого сечения.
- Окраска: Оранжевый (RAL 2004) для высокой видимости.
- Год выпуска: 2025 (новое оборудование).
Области применения:
- Строительство: заправка строительной техники (экскаваторов, бульдозеров, генераторов) непосредственно на объекте.
- Сельское хозяйство: обеспечение горючим комбайнов, тракторов и другой сельхозтехники в полевых условиях.
- Логистика и транспорт: организация заправки собственного автопарка на территории предприятия.
- Промышленность: резервное хранение и подача топлива для генераторов и стационарных двигателей.
- Коммунальные службы: обеспечение работы снегоуборочной, дорожной и другой коммунальной техники.
Прицеп-цистерна АТЗ 950 литров — это готовое, экономичное и безопасное решение для компаний, стремящихся оптимизировать логистику топлива и минимизировать простои техники. Благодаря продуманной комплектации и соответствию требованиям безопасности, он позволяет организовать заправочный пункт в любом месте, где это необходимо.
Поставляется полностью готовым к эксплуатации!
